Trilocale in vendita

Cesena, Via Malta
€ 140.000
Prezzo aggiornato
3 locali 3 locali
70 Mq 70 Mq
1 bagno 1 bagno

Trilocale in vendita

Cesena, Via Malta

Descrizione annuncio

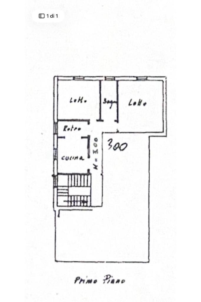
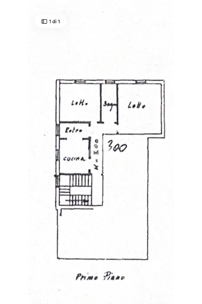
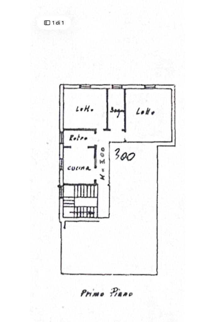
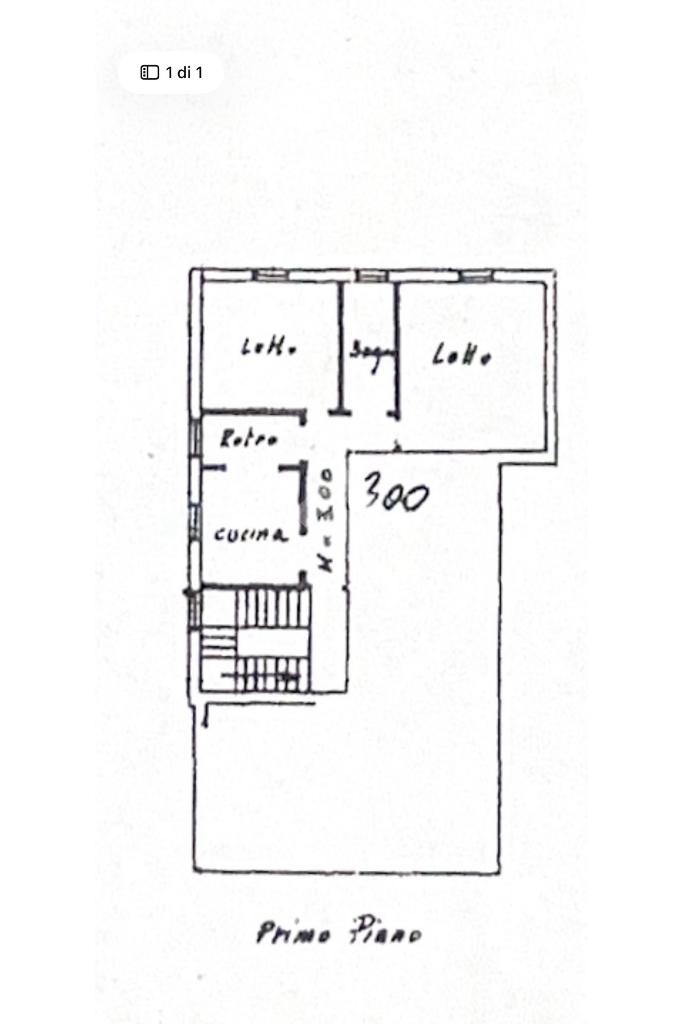
San Rocco: accogliente trilocale al primo piano , a due passi da tutti i principali servizi, e per gli spazi ben distribuiti che lo rendono perfetto per la vita quotidiana.

L’ingresso si apre su una luminosissima zona giorno, dove cucina e salotto si fondono in un unico ambiente conviviale, ideale per trascorrere momenti di relax o convivialità.

La zona notte ospita due camere da letto una matrimoniale e una singola.

Il bagno finestrato dona luminosità naturale, mentre gli infissi in PVC assicurano un ottimo isolamento termico e acustico, contribuendo al benessere e all’efficienza energetica dell’abitazione.

Un appartamento che unisce funzionalità, comfort e una posizione strategica, ideale per chi desidera vivere in un contesto tranquillo ma vicino a tutto ciò che serve.

Per qualsiasi informazione o per fissare un appuntamento chiama 0547332024 o 3938837233

Mostra tutto

Nelle vicinanze

Trasporto pubblico Trasporto pubblico
stazione di Cesena
stazione di Cesena
1,6 Km
Ponte Nuovo
Ponte Nuovo
240 m
Matteotti
Matteotti
300 m
Ricariche auto elettriche Ricariche auto elettriche
Eneldrive Parcheggio Ippodromo
660 m
Eneldrive Rocca Malatestiana
760 m
Eneldrive Centro Commerciale Lungo Savio
830 m
Eneldrive Carducci
1,3 Km
McDonald's Cesena Cattaneo
1,4 Km
Scuole Scuole
Scuola Primaria "Dante Alighieri"
330 m
Sala studio Alfa Albatros
730 m
Scuole
760 m
Scuola Primaria "Don Milani"
900 m
Ingegneria e Scienze Informatiche
920 m
Farmacia Farmacia
Farmacia Giardino
1,5 Km
Farmacia
2,1 Km
Farmacia Diegaro
2,1 Km
Parafarmacia Conad
2,5 Km
Ospedali Ospedali
Ospedale Maurizio Bufalini
2,3 Km
Supermercati Supermercati
Simply
640 m
Ipercoop
930 m
IL PUNTO NATURALE
1,0 Km
Conad Ponte Abbadesse
1,3 Km
A&O
2,3 Km
Negozi Negozi
RE' DI PANE
1,0 Km
NaturaSi
1,2 Km
Negozi
1,6 Km
Bar Bar
Bar
790 m
Piccolo Bar Aperitivi
860 m
divino caffe
960 m
Dolceamaro Bar
1,1 Km
Margo
1,3 Km
Ristoranti Ristoranti
La Stalla
600 m
Ristorante Pizzeria La Rocca
720 m
QBio
760 m
Pappa Reale
770 m
AltAMAREA
800 m
Mostra tutto

Caratteristiche

Rif.:
61135038
Piano:
1 di 2 (Piano alto)
Camere da letto:
2
Arredamento:
Assente
Condizionamento:
Assente
Ascensore:
No
Mostra tutto
Prezzo Prezzo
€ 140.000
Rata mutuo Rata mutuo
€ 660 / mese
Spese annue Spese annue
€ 0
Proponi il tuo prezzoProponi il tuo prezzo

Classe Energetica

G
G
G
G
G
G
G
G
G
Anno di costruzione:
1970
Riscaldamento:
Centralizzato
Tipo impianto:
A radiatori
Tipo alimentazione:
Altro

Prezzo ridotto di €1 (4%%)

Ti interessa visionare l'immobile?

Fissa un appuntamento  Fissa un appuntamento

Richiedi informazioni

Clicca su Leggi per aprire l'informativa
* Questi campi sono obbligatori

Calcola il tuo mutuo

Semplice e senza impegno
Anticipo

( % )
Mutuo

( % )

pochi semplici passi

inserisci i tuoi dati
Questionario completato
Grazie per aver richiesto un appuntamento senza impegno con un nostro Consulente del Credito e Assicurativo.

Hai inserito correttamente tutti i dati necessari e a breve riceverai una e-mail con un link da convalidare per inviare i tuoi dati.
Affiliato
Studio Cesena 4 Srl
Viale Giacomo Matteotti, 96/100 47023 Cesena (FC)
Viale Giacomo Matteotti, 96/100 47023 Cesena (FC)
Zona: Cesena-Ippodromo-San Rocco-San Mauro in Valle-San Carlo-Torre del Moro
Mostra su mappa
Orari: Invernale: lun - ven 9.00 / 13.00 - 15.00 / 19.30 - sab. 9.00 / 13.00 - pomeriggio su appuntamento +++ Estivo: lun - ven 9.00 / 13.00 - 15.30 / 20.00 - sab. 9.00 / 13.00 - pomeriggio su appuntamento
Affiliato
Studio Cesena 4 Srl
Viale Giacomo Matteotti, 96/100 47023 Cesena (FC)

2026 Tecnocasa Franchising S.p.A. - P. IVA 08365160152 - Via Monte Bianco 60/A 20089 Rozzano (MI). Ogni agenzia ha un proprio titolare ed è autonoma. Privacy policy | Policy utilizzo | Cookie policy