Casa semindipendente in vendita

Mercato Saraceno, Via degli Olivi
€ 130.000
Prezzo aggiornato
3 locali 3 locali
152 Mq 152 Mq
1 bagno 1 bagno

Casa semindipendente in vendita

Mercato Saraceno, Via degli Olivi

Descrizione annuncio

Mercato Saraceno:In tranquilla zona residenziale, proponiamo in vendita porzione di bifamiliare al piano terra, edificata negli anni '90 e parzialmente ristrutturata.

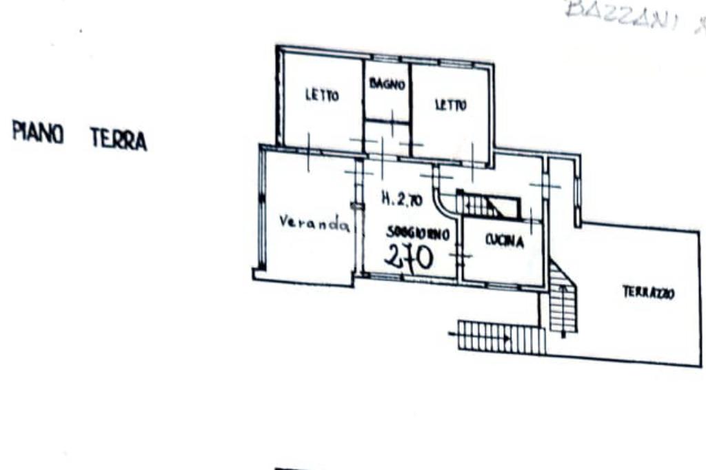
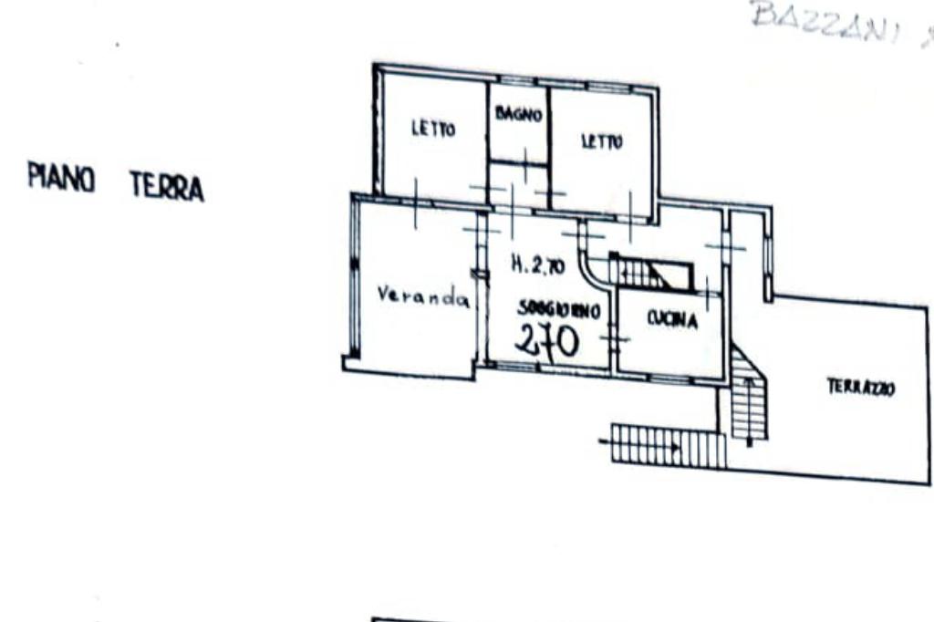
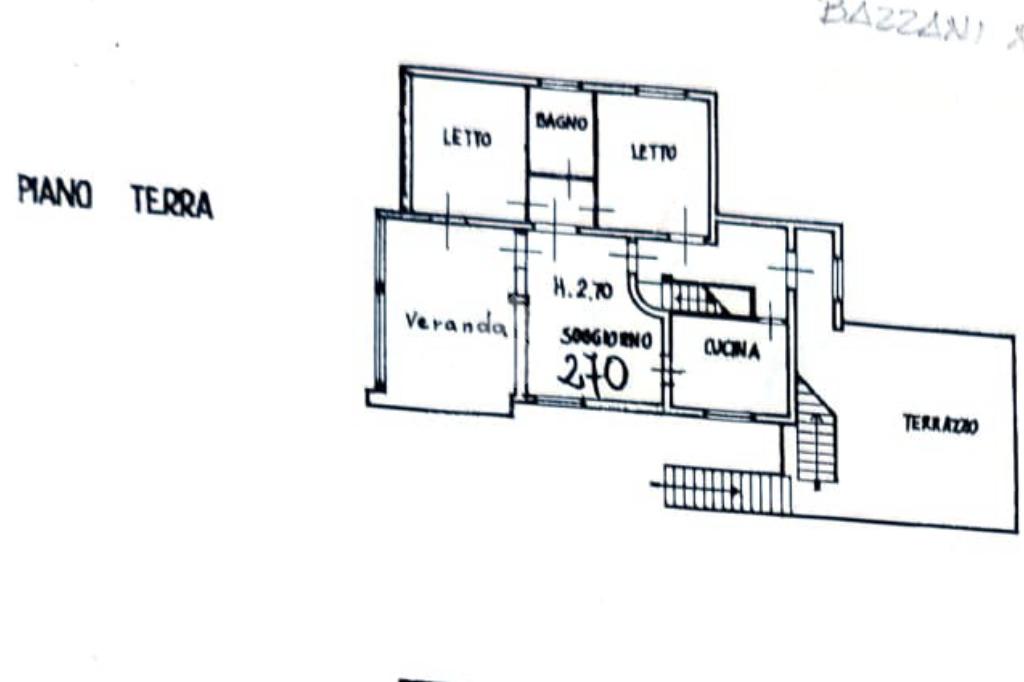
La soluzione si sviluppa su un unico livello e si compone di un accogliente soggiorno separato dalla cucina abitabile, due spaziose camere matrimoniali e un bagno finestrato completo di box doccia.

L’immobile gode di ottimi sfoghi esterni grazie a due terrazzi: uno molto ampio di oltre 30 mq, ideale per cene all’aperto o momenti di relax, e un secondo terrazzo di dimensioni più contenute, perfetto come zona colazione o angolo verde.

Completano la proprietà un garage privato e due comode cantine, ideali per uso lavanderia, dispensa o spazio hobby.

Soluzione ideale per chi cerca indipendenza, comodità e spazi vivibili, in un contesto tranquillo e ben servito.

Per qualsiasi informazione o per fissare un appuntamento chiama 0547332024 o 3938837233

Mostra tutto

Nelle vicinanze

Trasporto pubblico Trasporto pubblico
Trasporto pubblico
450 m
Ospedali Ospedali
Ospedale Capelli
1,3 Km
Mostra tutto

Caratteristiche

Rif.:
61045847
Piano:
1 di 2 (Piano terra)
Box:
1
Posti auto:
1
Terrazzi:
2
Camere da letto:
2
Mostra tutto
Prezzo Prezzo
€ 130.000
Rata mutuo Rata mutuo
€ 596 / mese
Spese annue Spese annue
€ 500
Proponi il tuo prezzoProponi il tuo prezzo

Classe Energetica

D
D
D
D
D
D
D
D
D
EP invernale del fabbricato:
EP estiva del fabbricato:
Anno di costruzione:
1990
Riscaldamento:
Autonomo
Tipo impianto:
A radiatori
Tipo alimentazione:
Altro

Prezzo ridotto di €1 (11%%)

Ti interessa visionare l'immobile?

Fissa un appuntamento  Fissa un appuntamento

Richiedi informazioni

* Questi campi sono obbligatori

Calcola il tuo mutuo

Semplice e senza impegno
Anticipo

( % )
Mutuo

( % )

pochi semplici passi

inserisci i tuoi dati
Questionario completato
Grazie per aver richiesto un appuntamento senza impegno con un nostro Consulente del Credito e Assicurativo.

Hai inserito correttamente tutti i dati necessari e a breve riceverai una e-mail con un link da convalidare per inviare i tuoi dati.
Affiliato
Studio Cesena 4 Srl
Viale Giacomo Matteotti, 96/100 47023 Cesena (FC)
Viale Giacomo Matteotti, 96/100 47023 Cesena (FC)
Zona: Cesena-Ippodromo-San Rocco-San Mauro in Valle-San Carlo-Torre del Moro
Mostra su mappa
Orari: Invernale: lun - ven 9.00 / 13.00 - 15.00 / 19.30 - sab. 9.00 / 13.00 - pomeriggio su appuntamento +++ Estivo: lun - ven 9.00 / 13.00 - 15.30 / 20.00 - sab. 9.00 / 13.00 - pomeriggio su appuntamento
Affiliato
Studio Cesena 4 Srl
Viale Giacomo Matteotti, 96/100 47023 Cesena (FC)

2025 Tecnocasa Franchising S.p.A. - P. IVA 08365160152 - Via Monte Bianco 60/A 20089 Rozzano (MI). Ogni agenzia ha un proprio titolare ed è autonoma. Privacy policy | Policy utilizzo | Cookie policy